A614 VENDITA

Sorrento 3 camere giardino
Tipologia:
Appartamento
Comune:
Sorrento
Località:
Atigliana
Mq:
50
Vani:
3
Prezzo:
€ 350.000
Classe Energetica G
Prestazione energetica inverno
Prestazione energetica estate

Descrizione dell'immobile:

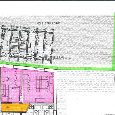
A pochi minuti dal centro di Sorrento, in piccolo fabbricato signorile, vendesi frazionando appartamento composto da soggiorno-cucina, camera, cameretta, bagno. grazioso giardino antistante con ampia cantina.  

Caratteristiche principali:

Posizione: 
semicentrale
Esposizione: 
Soleggiata
Orientamento: 
Sud-Ovest
Mq coperti: 
50
Mq scoperti: 
280
Classe Energetica: 
G
Piano: 
piano terra
Numero vani: 
3
Bagni: 
1
Tipo Cucina: 
Angolo cottura
Terrazzi: 
n° 1 - Totale: 20 mq
Giardino: 
260 mq
Cantina: 
7 mq
Ascensore: 
No
Stato: 
libero alla vendita

Note:

  • Le misure in metri quadri sono indicative e non costituiscono condizioni contrattuali.
  • Al momento del sopralluogo dovrà essere firmato il foglio visita e consenso privacy.

Foto, Video & Planimetrie:

Contattaci per questo immobile:

P.iva: 08676821211 Privacy Policy About Cookies