V402 VENDITA

Praiano casa indipendente panoramica, portico, terrazzi e giardino.
Tipologia:
Casa indipendente - Fabbricato
Comune:
Praiano
Mq:
97
Vani:
3
Prezzo:
€ 720.000
Classe Energetica G
Prestazione energetica inverno
Prestazione energetica estate

Descrizione dell'immobile:

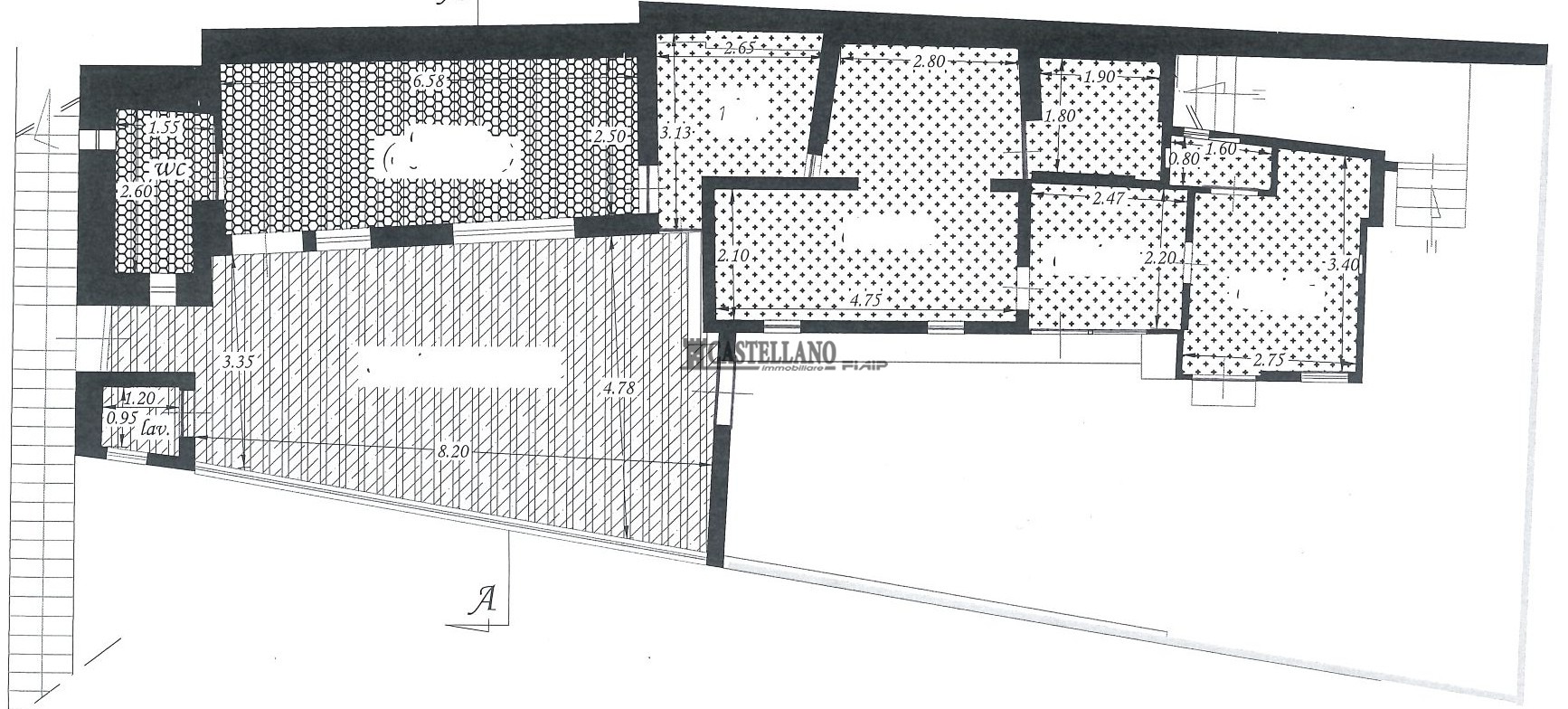
A Praiano a breve distanza dalla Statale, accessibile tramite scalinata, vendesi casa indipendente su un solo livello, con grande portico, terrazze e giardino, tutti con una bella vista sul Golfo e la costa di Salerno.

Caratteristiche principali:

Esposizione: 
Panoramica
Orientamento: 
Sud-Est
Mq coperti: 
97
Mq scoperti: 
100
Classe Energetica: 
G
Numero vani: 
3
Bagni: 
3
Tipo Cucina: 
Cucina piccola
Terrazzi: 
n° 3 - Totale: 40 mq
Giardino: 
50 mq
Ascensore: 
No

Note:

  • Le misure in metri quadri sono indicative e non costituiscono condizioni contrattuali.
  • Al momento del sopralluogo dovrà essere firmato il foglio visita e consenso privacy.

Foto, Video & Planimetrie:

Contattaci per questo immobile:

P.iva: 08676821211 Privacy Policy About Cookies