A632 VENDITA

Piano di Sorrento, vendesi appartamento in trifamiliare, mq 130, con terrazzo a livello, giardino e parcheggio
Comune:
Piano di Sorrento
Località:
Mortora
Mq:
130
Vani:
4
Prezzo:
€ 690.000
Classe Energetica G
Prestazione energetica inverno
Prestazione energetica estate

Descrizione dell'immobile:

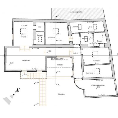
Nella località di Mortora, posizione tranquilla, in piccolo fabbricato d'epoca (tre appartamenti), con accesso carrabile in un viale comune, dove si trovano un piccolo giardino ed un'area di parcheggio esclusivi; vendesi appartamento al primo piano (intero ed ultimo), ottimamente esposto, di ca. 130 mq coperti, con terrazzo a livello. Attualmente l'unità è costituita da salone con camino, cucina abitabile, terrazzo a livello, camera con spogliatoio ed ampia stanza da bagno, altra camera ampia e divisibile, grande bagno ed comodo ripostiglio. Nelle planimetrie troverete un'ipotesi di ristrutturazione.

Caratteristiche principali:

Posizione: 
semicentrale
Esposizione: 
Soleggiata
Orientamento: 
Sud-Ovest
Mq coperti: 
130
Mq scoperti: 
80
Classe Energetica: 
G
Riscaldamento: 
Autonomo
Piano: 
primo piano
Numero vani: 
4
Bagni: 
2
Tipo Cucina: 
Abitabile
Terrazzi: 
n° 1 - Totale: 15 mq
Posto Auto: 
n° 2 - Scoperto
Cortile: 
25.00 mq
Giardino: 
40 mq
Ascensore: 
No

Note:

  • Le misure in metri quadri sono indicative e non costituiscono condizioni contrattuali.
  • Al momento del sopralluogo dovrà essere firmato il foglio visita e consenso privacy.

Contattaci per questo immobile:

P.iva: 08676821211 Privacy Policy About Cookies