A747 VENDITA
Piano, centralissimo in bifamiliare, 110mq con terrazzi
Tipologia:
In bifamiliare
Comune:
Piano di Sorrento
Località:
Centro storico
Mq:
110
Vani:
4
Prezzo:
€ 650.000



Descrizione dell'immobile:
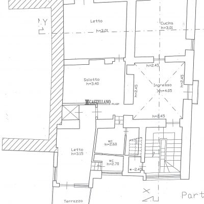
A Piano di Sorrento, in ottima posizione centrale, in piccolo fabbricato bifamiliare, vendesi appartamento, in ottime condizioni, al primo piano, unico sul piano, con alti soffitti a volta, composto da ingresso, salone, due grandi camere da letto, cucina con ampio tinello, stanza da bagno, bagno di servizio, terrazzo a livello. Inoltre è di esclusiva proprietà il sottotetto sovrastante con ampio terrazzo attrezzato.
Caratteristiche principali:
Posizione:
centrale
Esposizione:
Tranquilla
Orientamento:
Sud-Ovest
Mq coperti:
110
Mq scoperti:
100
Superficie Commerciale:
200
Classe Energetica:
G
Riscaldamento:
Autonomo
Condizionatore:
Si
Piano:
primo piano
Numero vani:
4
Bagni:
2
Tipo Cucina:
A vista
Terrazzi:
n° 2 - Totale: 100 mq
Cantina:
40 mq
Ascensore:
No
Note:
- Le misure in metri quadri sono indicative e non costituiscono condizioni contrattuali.
- Al momento del sopralluogo dovrà essere firmato il foglio visita e consenso privacy.