A699 VENDITA

Piano di Sorrento, centrale e signorile, nuda proprietà appartamento, 65 mq, terrazzi, posto auto
Tipologia:
Nuda proprietà
Comune:
Piano di Sorrento
Mq:
66
Vani:
2
Prezzo:
€ 350.000
Classe Energetica G
Prestazione energetica inverno
Prestazione energetica estate

Descrizione dell'immobile:

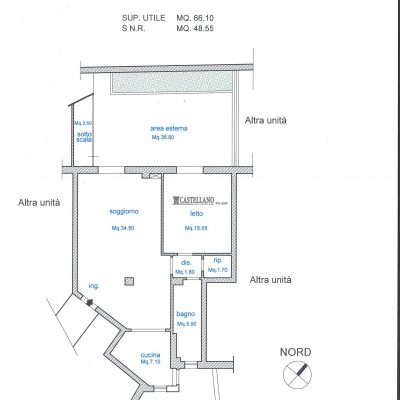
A Piano di Sorrento in posizone centrale, in contesto signorile di parco con piscina ed aree attrezzate, vendesi nuda proprietà di comodo appartamento al piano terra, composto da salone, cucina, camera matrimoniale, bagno, ripostiglio, ampia terrazza con aiuola, terrazzino e posto auto privato. L'accesso all'appartamento è senza scalini.

Caratteristiche principali:

Posizione: 
centrale
Esposizione: 
Tranquilla
Orientamento: 
Ovest-Est
Mq coperti: 
66
Mq scoperti: 
50
Classe Energetica: 
G
Piano: 
piano terra
Numero vani: 
2
Bagni: 
1
Tipo Cucina: 
Cucina media
Terrazzi: 
n° 2 - Totale: 40 mq
Posto Auto: 
n° 1 - Scoperto
Giardino: 
5 mq
Ascensore: 
No

Note:

  • Le misure in metri quadri sono indicative e non costituiscono condizioni contrattuali.
  • Al momento del sopralluogo dovrà essere firmato il foglio visita e consenso privacy.

Foto, Video & Planimetrie:

Contattaci per questo immobile:

P.iva: 08676821211 Privacy Policy About Cookies