A632 VENDITA
Meta, vendesi appartamento indipendente, mq 140, terrazzo e box auto
Comune:
Meta
Località:
PRESSI SPIAGGIA
Mq:
130
Vani:
4
Prezzo:
€ 690.000

EP gl,nren
360.00
kWh/mq anno


Descrizione dell'immobile:
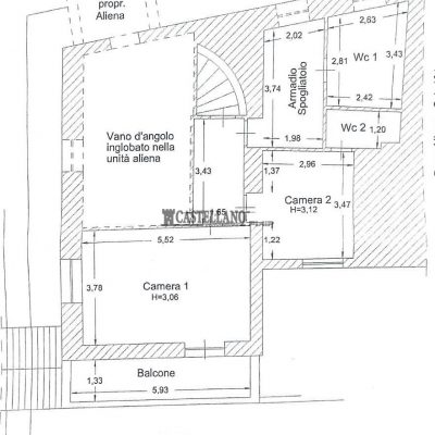
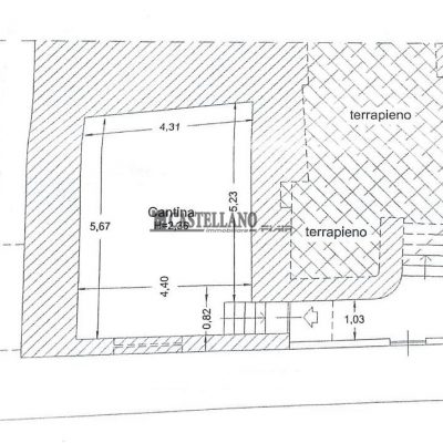
A Meta, lato mare, pressi P.zza Scarpati, vendesi appartamento con ingresso indipendente, su due livelli, composto da: al piano terra da ampio salone con cucina abitabile, bagno e terrazzo; al primo piano da: disimpegno, camera matrimoniale, camera, spogliatoio, stanza da bagno, bagno e balconata. Al piano seminterrato c'è un comodo locale di ca.22mq. Inoltre la proprietà dispone di un box auto pertinenziale da poter acquistare separatamente.
Caratteristiche principali:
Posizione:
lato mare
Esposizione:
Soleggiata
Orientamento:
Sud-Ovest
Mq coperti:
130
Mq scoperti:
28
Classe Energetica:
G
Riscaldamento:
Autonomo
Condizionatore:
Si
Piano:
rialzato
Numero vani:
4
Bagni:
3
Tipo Cucina:
Cucina grande
Box:
n° 1 - Totale: 17 mq
Terrazzi:
n° 1 - Totale: 20 mq
Balconi:
n° 1 - Totale: 5 mq
Cantina:
22 mq
Ascensore:
No
Note:
- Le misure in metri quadri sono indicative e non costituiscono condizioni contrattuali.
- Al momento del sopralluogo dovrà essere firmato il foglio visita e consenso privacy.