Z903 CESSIONE

Cedesi attività di ristorazione, in posizione centralissima, anche fitto d'azienda
Tipologia:
cessione ristorante
Comune:
PENISOLA SORRENTINA
Mq:
95
Prezzo:
€ 160.000
Classe Energetica G
Prestazione energetica inverno
Prestazione energetica estate

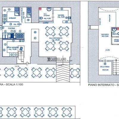
Descrizione dell'immobile:

Tra Meta e Sorrento, in buona posizione centralissima, cedesi grazioso ristorante in ottime condizioni, fronte strada, sala interna di ca.30 posti e spazio esterno in concessione per circa altri 40 posti. Comoda cucina funzionale ed ampio locale per deposito e celle frigorifere. Possibilità anche di fitto d'azienda. Ottima soluzione per chi vuole una struttura già avviata, in perfette condizioni, per una gestione semi-familiare e pertanto non troppo impegnativa come personale impiegato. Trattativa riservata.

Caratteristiche principali:

Posizione: 
centralissima
Esposizione: 
Su Strada
Mq coperti: 
95
Mq scoperti: 
40
Classe Energetica: 
G
Condizionatore: 
Si
Piano: 
piano terra
Ascensore: 
No
Stato: 
in attività

Note:

  • Le misure in metri quadri sono indicative e non costituiscono condizioni contrattuali.
  • Al momento del sopralluogo dovrà essere firmato il foglio visita e consenso privacy.

Foto, Video & Planimetrie:

Contattaci per questo immobile:

P.iva: 08676821211 Privacy Policy About Cookies